SHOULD I STAY OR SHOULD I GO?



Love your lot but not your layout? I specialize in helping homeowners explore what’s possible with their current home and property. Whether it’s reimagining your existing space or starting fresh with a new design, our feasibility studies give you clear options and confidence to make the best decision for your future. I can also deliver builder‑ready materials, preliminary plans, scope notes, and key assumptions, so your contractor can develop realistic cost estimates from day one.

“We love our neighborhood but need more space!”

Current Home


Smart Expansion


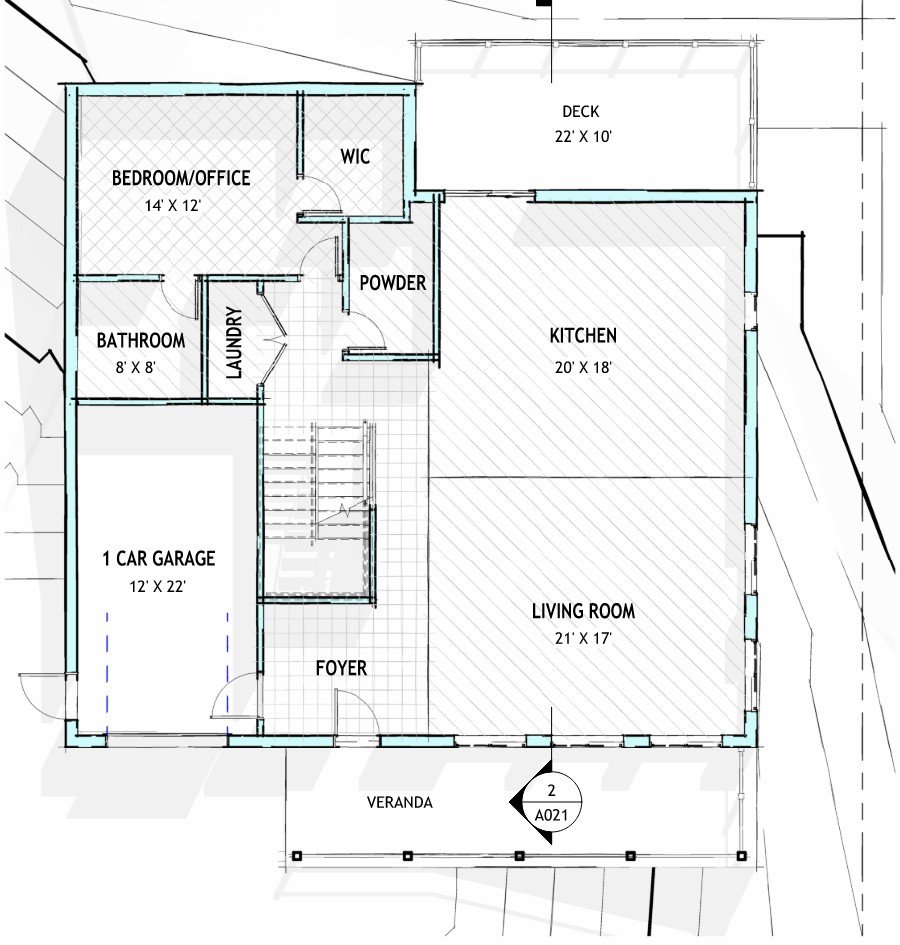
First Floor

Second Floor

I can help you envision a thoughtful, compact way to get the spaces you need without making the house bigger than it has to be. It focuses on improving how your home feels and functions day‑to‑day, while keeping the footprint efficient and the project grounded in what truly matters to your family. If you want meaningful improvements without overbuilding, this approach shows how we can get you there comfortably and creatively.


Full Transformation

First Floor

Second Floor

Or we can imagine a more ambitious re‑envisioning of your home—one that gives you the space, openness, and layout flexibility that simply isn’t possible within the existing footprint. In this approach, we look beyond small adjustments and explore how expanding the home more boldly can create the rooms, circulation, and natural light your family is craving. If you’re ready for a home that feels truly new while staying rooted in the place you love, this option shows what a full transformation can unlock.

Ready to talk?